Будинки в Києві
Продажа дома в изумительном курортном месте "Канадская деревня" в Києві
Продажа дома в изумительном курортном месте "Канадская деревня". Без комиссии для покупателя.
Сделайте своей семье подарок к Новому Году!
Капитальный кирпичный дом общей площадью 398, 1 м2 (по факту больше) построен с соблюдением всех строительных норм.
Участок 0, 1077 га - вполне достаточный, чтобы наслаждаться жизнью, а не работать на нем. Огражден по периметру забором. Есть откатные автоматические ворота.
Объемные комнаты, благодаря большим окнам, наполнены дневным светом, а в холодное время года прогреваются естественным солнечным теплом!
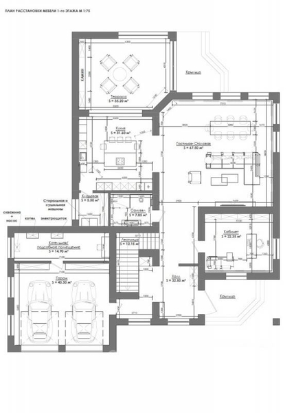
Оптимальный метраж и рациональная планировка - то, что сегодня пользуется спросом.
На первом этаже:
гостиная;
кухня - столовая с выходом на крытую террасу;
кабинет;
ванная комната;
прачечная;
холл;
гараж с автоматическими воротами на два автомобиля;
котельная.
На второй этаж ведет широкий удобный лестничный марш.
Здесь:
три спальни;
две ванные комнаты;
гардеробная с выходом на балкон;
холл.
Дом введен в эксплуатацию, отапливается газовым котлом Viessmann. Произведен монтаж теплых полов по всему первому этажу (+ внутрипольные конвекторы) и второму, за исключением комнат, где установлены радиаторы отопления.
Все инженерные сети разведены по дому.
Выгодная локация - все соседи построились, вокруг благоустроенные участки с ландшафтным дизайном.
Асфальтированный подъезд к дому.
Коммуникации:
в дом заведено 18 квт электроэнергии, три фазы;
газ;
своя скважина глубиной 60 м.;
септик Топол - Эко с переливом.
Технические характеристики:
фундамент: ленточный, железобетон, глубиной 2 м + монолитная плита, гидроизоляция + утепление;
полы: утеплены пенопластом 100 мм;
стены: силикатный кирпич + утепление пенополистиролом 50 мм + штукатурка;
перекрытия: железобетон (перекрытие второго этажа утеплено);
кровля: битумная черепица;
окна: металлопластиковые, двухкамерный стеклопакет;
двери бронированные.
Инфраструктура:
Коттеджный городок “Канадская деревня” расположен на пятом километре Гостомельского шоссе в
Дії з оголошенням #1718636
Поділіться з друзями і знайомими
Поділіться оголошенням Продажа дома в изумительном курортном месте "Канадская деревня" з друзями, знайомими, потенційними клієнтами, використовуйте для цього соціальні мережі, месенджери. Це додасть оголошенню популярності і ефект багаторазово підвищиться.
Збережіть або повідомте про порушення
- На сайті з: 05.02.2021
- Активність: 18.02.2022
Поради з безпеки
- Познайомтеся з продавцем в публічному місці
- Перевірте товар перед покупкою
- Сплачуйте лише після того як переконаєтеся, що товар відповідає опису і вашим вимогам
- Бажано провести операцію при свідках
Інші оголошення від
QR-код сторінки
Поділіться QR-кодом в соціальних мережах, чатах, месенджерах щоб ваші знайомі, потенційні клієнти відкрили ваше оголошення на своїх смартфонах.
Казахстан
Україна
Узбекистан
Молдова