Украина
Змінити
Змінити

Модульный мини дом. Модульный дом под ключ. в Києві

Утепление дома, на выбор заказчика:
- для круглогодичного проживания.
- для сезонного проживания (весна - осень)
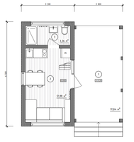
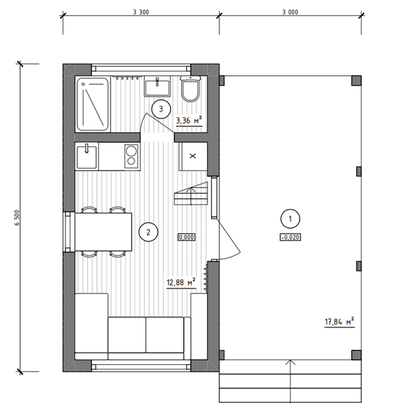
Общая площадь: 39, 68 кв.м
Жилая прлощадь: 21, 84 кв.м
Высота потолка: 2, 67 м

НАС ВЫБИРАЮТ ◆ потому что:
- Собственный производственный комплекс, работаем без посредников по договору
- Выполняем полный комплекс работ: производство, монтаж
- Изготавливаем дома по чертежам заказчика, улучшаем, меняем планировку.

Наши достоинства:
- Внутренние лаги 45х195 (обработаны огнебиозащитой)
- Окна двухкамерные стеклопакеты (тройное остекление)
- Толщина пола: 150-200мм + OSB + Ламинат
- Толщина крыши: 150-200мм
- Стены: 150-200-250 мм ( + Гипсокартон 10 мм)
- Вентиляция + паро-ветро-влаго защита :
Гидроизоляционная мембрана Ondutis smart
Пароизоляционная мембрана Ondutis smart
- Кровля на выбор заказчика: металлочерепица
- Санузел собран (обшит) из влагостойких материалов.


Строительство коттеджа. Коттедж под ключ. Строительство коттеджа под ключ. Проектирование домов. Проект дома. Фахверк. Хай-тек. Барнхаус. Строительство дома из бруса. Дом из бруса. Модульный дом. Строительство модульных домов. Строительство дома под ключ. Дом под ключ. Строительство каркасных домов. Каркасный дом под ключ. Каркасный дом. Строительство каркасных домов под ключ. Дом из блоков. Строительство дома из блоков. Модульный дом под ключ. Комбинированные дома. Каркасные дома. Баня под ключ. Баня из бруса. Готовая баня под ключ. Строительство бани под ключ. Коттедж.

Тип оголошення:
Продам, продаж, продаю
Торг:
доречний

Інформація про компанію, яка розмістила оголошення:

ООО "Модульний будинок" - Опис компанії - Будівництво та проектування будинків, бань під ключ: Будинок із бруса. Модульний будинок. Комбіновані будинки. Каркасні будинки. Лазня із бруса. Готова лазня під ключ. Будівництво котеджу. Проектування будинків. Проект будинку. Фахверк. Хай тек. Барнхаус. Зростаючий модульний префаб будинків Модульний префаб будинок Будинок з клеєного бруса Будинок із круглого брусу Будинок із профільованого бруса Бідінок з лафету Комбіновані будинки Літні садові будиночки

Дії з оголошенням #1736065

Поділіться з друзями і знайомими

Поділіться оголошенням Модульный мини дом. Модульный дом под ключ. з друзями, знайомими, потенційними клієнтами, використовуйте для цього соціальні мережі, месенджери. Це додасть оголошенню популярності і ефект багаторазово підвищиться.

Збережіть або повідомте про порушення