Приміщення і Споруди в Києві
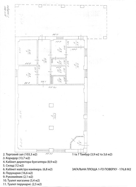
ПРОДАЖА коммерческой недвижимости. Комплекс находится в 4-х км от Киева, с. Гнидын Бориспольского района. Отдельно стоящее 3-х этажное здание площадью 520кв. м.+ крытая летняя площадка 75кв.м. Комплекс расположен на берегу озера с прекрасным видом на лес. На первом этаже (180 кв.м.) расположен торговый зал 103 кв.м.+ кабинеты; На втором этаже - зал 124 кв.м+ кабинеты + большая крытая летняя площадка; Третий этаж - свободная планировка. Внутренние перегородки - не несущие. Возможна перепланировка. Можно сделать одно открытое пространство. Участок 9 соток. Электроэнергия - 80 кВт. Есть скважина. Центральная канализация, автономное отопление. Пожарная и охранная сигнализация. Паркинг. Работает высокоскоростной Интернет.
***
Александр - 0631095299
Дії з оголошенням #1667374
Поділіться з друзями і знайомими
Поділіться оголошенням Продам недвижимость в Гнидын (Гнедин) з друзями, знайомими, потенційними клієнтами, використовуйте для цього соціальні мережі, месенджери. Це додасть оголошенню популярності і ефект багаторазово підвищиться.
Збережіть або повідомте про порушення
Александр Александр
- На сайті з: 12.10.2019
- Активність: 12.10.2019
Поради з безпеки
- Познайомтеся з продавцем в публічному місці
- Перевірте товар перед покупкою
- Сплачуйте лише після того як переконаєтеся, що товар відповідає опису і вашим вимогам
- Бажано провести операцію при свідках
QR-код сторінки
Поділіться QR-кодом в соціальних мережах, чатах, месенджерах щоб ваші знайомі, потенційні клієнти відкрили ваше оголошення на своїх смартфонах.
Казахстан
Україна
Узбекистан
Молдова