Дизайн в Києві
Дизайн интерьера - чертежи, перепланировка, расстановка мебели в Києві
Чертежи дизайн-проекта - это целый набор планов, схем, разверток, которые входят в состав проектной документации. Их готовят проектировщики согласно планировочных, стилевых и технологических задач интерьера.
Задача чертежей - максимально полно представить техническую информацию, которая затем попадает в руки ремонтной бригады: строителей, инженеров, электриков...
От точности передачи и соблюдения расчетов зависит, насколько быстро и качественно будет реализован дизайн квартиры, дома или офиса.
Предлагаю рабочие чертежи по низкой цене, от 30грн за м2**.
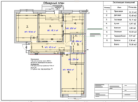
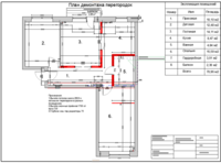
План:
1.Основной;
2.Демонтажа;
3.Монтажа;
4.Варианты планировочных решений;
5.Расстановка мебели ;
6.Визуализация плана с расстановкой мебели.
от 1м2 до 50м2 - 50грн за м2
от 51м2 до 100м2 - 40грн за м2
от 101м2 до 150м2 - 30грн за м2
свыше 151м2 стоимость оговаривается.
Работаю с выездом на объект так и дистанционно по всей Украине.
Выезд по договорённости...
Больше информации по телефону.
*Минимальная цена за работу 1000грн.
** в стоимость входит: План:
1.Основной;
2.Демонтажа;
3.Монтажа;
4.Варианты планировочных решений;
5.Расстановка мебели ;
6.Визуализация плана с расстановкой мебели.
Дії з оголошенням #1705651
Поділіться з друзями і знайомими
Поділіться оголошенням Дизайн интерьера - чертежи, перепланировка, расстановка мебели з друзями, знайомими, потенційними клієнтами, використовуйте для цього соціальні мережі, месенджери. Це додасть оголошенню популярності і ефект багаторазово підвищиться.
Збережіть або повідомте про порушення
Александр Александр
- На сайті з: 28.02.2020
- Активність: 30.03.2021
Поради з безпеки
- Познайомтеся з продавцем в публічному місці
- Перевірте товар перед покупкою
- Сплачуйте лише після того як переконаєтеся, що товар відповідає опису і вашим вимогам
- Бажано провести операцію при свідках
QR-код сторінки
Поділіться QR-кодом в соціальних мережах, чатах, месенджерах щоб ваші знайомі, потенційні клієнти відкрили ваше оголошення на своїх смартфонах.
Казахстан
Україна
Узбекистан
Молдова